Kokerei Zollverein | Mischanlage
Essen












Walter Buschmann
Mischanlage
Mischanlagen sind seit den 1920er Jahren Bestandteil von Groß- und Zentralkokereien mit der Aufgabe, Kokskohle unterschiedlicher Qualität, die von verschiedenen Zechen oder Abbauorten stammen, zu einer einheitlichen Qualität zu vermengen. Oftmals in sichtbarem Beton konstruiert (vgl. Kokerei Anna in Alsdorf) unterwarf Fritz Schupp auch die Mischanlage der Kokerei Zollverein dem einmal gewählten gestalterischen Thema, indem er die Bunker mit Ziegeln verkleidete und dem mächtigen Quaderbau mit Bauteilen aus Stahlfachwerk größere Leichtigkeit verlieh.
Die Mischanlage der Kokerei Zollverein (1958, Arch. Fritz Schupp) verweist darauf, dass auch hier unterschiedliche Kokskohlequalitäten zum Einsatz kamen. Sehr augenfällig wird dies durch die aus gegensätzlicher Richtung in das Gebäude einmündenden Bekohlungsbrücken: die südliche von der Schachtanlage Zollverein 12 kommend und die nördliche zu einem zur Anlieferung der Fremdkohle dienenden Tiefbunker reichend. Beide Bandbrücken haben die gleiche Neigung, so dass die Mischanlage als symmetrisch ausgebildete Monumentalplastik der Gesamtanlage im Osten vorgelagert ist.
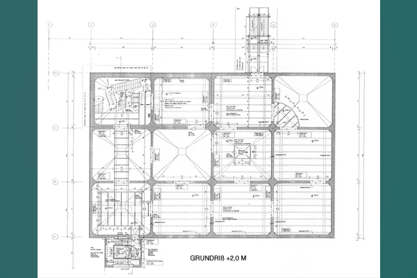
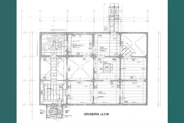
Grundriss der Kohlenbunker
Die Primärkonstruktion der Mischanlage auf der Kokerei Zollverein besteht aus zwölf Stahlbetonbunkern mit einem jeweiligen Fassungsvermögen von 600 kg (= 7 200 kg Gesamtvolumen). Die Bunker sind mit Ziegelmauerwerk verblendet. Das über den Bunkern aufsitzende Geschoß für die Aufgabevorrichtungen ist in Stahlfachwerk ausgeführt, ebenso wie ein schmaler, in ganzer Gebäudebreite sich erstreckender Aufsatz, in den seitlich die Bekohlungsbrücken einmünden. Westlich, zu den Koksofenbatterien orientiert, ist dem Gebäude ein flacher Bauteil in Stahlfachwerk für Steuerstand, Meisterstube und Aufenthaltsraum vorgelagert. Die Bandanlagen unter diesem Gebäudeteil enden in einer quaderförmigen Übergabestation, die zur weiterführenden Schrägbandbrücke vermittelt. Der Südfassade im Zwickel vorgelagert ist ein Treppenturm mit Stahlfachwerkfassaden.
Ausstattung: Im Aufgabegeschoß befinden sich drei verfahrbare Aufgabebänder. Die Mischung der Kokskohle erfolgt durch sechs Mischbänder mit Bandwaagen, die sich auf dem Geschoß unter den Bunkern befinden.
Die Mischanlage der Kokerei Zollverein wurde 1999 umgebaut für die Ausstellung „Sonne, Mond und Sterne“. Dazu wurde ein Teil der Ausstattung entfernt, neue Treppen eingebaut und die Silos mit Durchbrüchen erschlossen. Aus diesem Umbau erhalten und in Funktion ist das „Kokerei-Café“.
Literatur
• Pfeiffer, Marita: Angst vorm „leeren“ Denkmal? Bedeutung, Umbau und Nutzung der Mischanlage auf der Kokerei Zollverein, in: Mainzer, Udo(Hg.): Zeche und Kokerei Zollverein. Das Weltkulturerbe, Worms 2006, S. 183-194