Direkt im Anschluß an die elektrotechnische Werkstatt wurde 1900|01 als Ersatz für die alte Mechanische Werkstatt die Maschinenbau-Werkstätte errichtet. Sie war groß genug, um nicht mehr nur wie zuvor Reparaturen ausführen zu können. Es sollten hier auch neue Maschinen entstehen. Der Maschinenbau auf eigenem Werksgelände galt als besonders wichtig, weil die Konstruktion der Maschinen gegenüber der Konkurrenz geheim gehalten werden sollte. Die Maschinen-Werkstätte stand funktional in enger Verbindung mit der 1897 fertig gestellten Gießerei (nicht erhalten, heute Büros und Studios brainpool).
Die Maschinenwerkstätte ist ein in den Fassaden 2-geschossiger Backsteinbau. Im Inneren ist die Halle dreischiffig ausgebildet. In den Seitenschiffen befinden sich Emporen für Meisterbüros und Magazine.
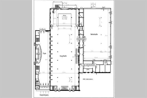
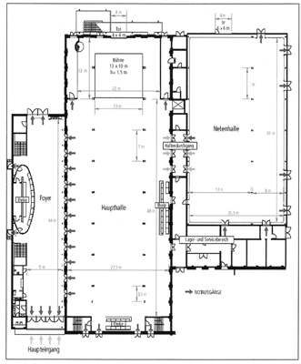
Das Gebäude wurde 1997–98 nach Entwurf des Büros Seiffert & Partner umgebaut. Das Dach wurde erneuert, die Fensteröffnungen zugemauert. An Stelle einer Nebenhalle entstand in neuen Formen ein Foyer mit Garderobe und Sanitärräumen. In der eigentlichen Maschinenbau-Werkstätte wurde die alte Hallenkonstruktion erhalten und anschaulich in die neue Hallennutzung als Veranstaltungs- und Eventstätte einbezogen. Die erste Veranstaltung fand im Dezember 1998 statt. (Walter Buschmann)

















