Rotes Haus
Monschau, Laufenstr. 10


Link
Auf Tuchfühlung mit einer Unternehmer-Dynastie. Dauerausstellung im Roten Haus




Walter Buschmann
Das Rote Haus in Monschau


1752-68 Bau des Roten Hauses durch Johann Heinrich Scheibler. Das Haus vereinigt Wohn- und Gewerbenutzung unter einem Dach.
Rotes Haus. Ansicht von der Flußseite. Foto 1996
Das wird schon im Außenbau deutlich: der dreigeschossige, querrechteckige Hauptbaukörper ruht auf einem hohen Keller- oder Sockelgeschoß, das erst an der Rur zur vollen Entfaltung gelangt und wird gedeckt von einem mächtigen, verschieferten Mansarddach. Die Längsfassaden zur Rur und zur Laufenstr. sind acht Achsen , die Schmalseiten 4 Achsen breit mit stichbogigen Fenstern, die von flachen Fenstergewänden aus Blaustein mit Keilsteinen gerahmt werden. Eckrustika begrenzen die rot gestrichenen Ziegelfassaden. Der Fassadenschmuck konzentriert sich auf die beiden Hauseingänge mit den reich geschnitzten Holztüren und Oberlichtern und den auf die Türen zuführenden geschweiften Freitreppen mit ihren schmiedeeisernen Ziergittern. Man hat zeitweise angenommen, daß Johann Joseph Couven der Architekt des Hauses war, doch ergab ein stilkritischer Vergleich, daß das Rote Haus stärker verwandt ist mit dem Bergischen Bürgerhaus. Johann Heinrich Scheibler hat also die Bauformen seiner Heimat in die Eifel mitgebracht. Welcher Architekt die Baupläne lieferte ist nicht bekannt.

Besondere Aufmerksamkeit soll den produktiven Funktionen des Hauses gewidmet werden. Das Rote Haus vereinigt - wie die beiden Hauseingänge bereits andeuten - zwei Häuser: links das Wohnhaus "Zum goldenen Helm" und rechts das Kontorhaus "Zum Pelikan". Im hohen Speicher lagerte die sortierte Wolle. An der südlichen Schmalseite ist am Dach ein Kranbalken montiert. Mit Fuhrwerke wurde die Wolle im flachen Bett des Laufenbachs unter den Kranbalken gefahren und konnte dann nach oben gewunden werden. Zwischen Speicher und Keller vermittelte ein Fallschacht. Im Keller waren Wollwäsche und Färberei untergebracht.

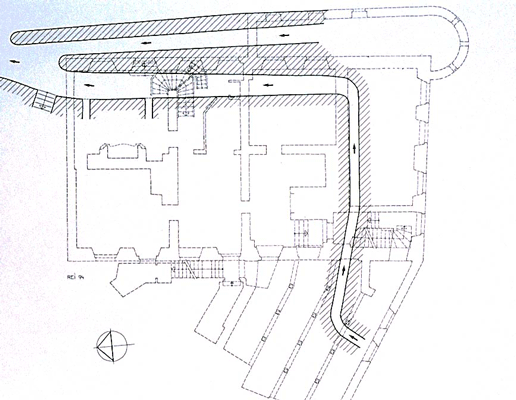
Keller unter dem Vorplatz für Wollspüle und Färberei
Der Keller verdient besondere Beachtung. Er erstreckt sich nicht nur unter dem Haus, sondern auch der dem Roten Haus vorgelagerte Vorplatz ist unterkellert. Dieser dem eigentlichen Haus vorgelagerte Keller besteht aus einer Konstruktion von drei Reihen niedriger Natursteinsäulen mit stilisierten Basen und Kapitellen. Die insgesamt 10 Säulen tragen heute eine Betondecke vermutlich anstelle einer vorherigen Holzbalkendecke. In diesem Keller beginnt die aus dem Laufenbach gespeiste Wollspüle I. Es handelt sich um einen flachen, aus Natursteinen gemauerten Kanal, der sich stetig vertieft und unter dem "Haus zum Pelikan" Richtung Rur führt. Ein historischer Plan zeigt, daß diese Wollspüle ursprünglich gerade auf die Rur zuführte. Dieser Plan zeigt auch drei Becken, in denen die Wolle mittels Weidekörbe zum Waschen in das fließende Wasser einghängt wurde. 1816/17 ist an der Rurseite eine zweite Wollspüle angelegt worden. Diese Wollspüle II entstand als ein im Bachbett der Rur liegender Spülkanal, der durch eine Scheidemauer von der Rur getrennt war und teilweise überdacht war. Um ausreichend Wasser der Rur in diesen Kanal leiten zu können, wurde in den Flußlauf ein schräg auf die Wollspüle zuführender Balken gelegt.

Grundriß mit Wollwäsche und Färberei, Kanal und Mündung vom Laufenbach in Rur
1832 ließ der Enkel des Firmengründers Friedrich Jacob Scheibler in einem Kanal, der parallel zur Wollspüle II angeordnet wurde ein Wasserrad zum Antrieb von Rauh- und Schermaschinen einhängen. Ob der Kanal bereits vorhanden war und mit der Wollspüle I zugleich mit dem Bau des Hauses 1752-68 entstand, oder zusammen mit dem Wasserrad erst 1832 neu angelegt wurde muß einer profunden Bauforschung überlassen bleiben. Die überlieferten historischen Pläne lassen den Schluß zu, daß dieser Kanal erst 1832 angelegt wurde. Der Kanal für das Wasserrad wurde sowohl durch das Wasser des Laufenbachs also aus der Wollspüle I, wie auch über eine kurze Stichverbindung durch das Wasser der Rur gespeist. Nach dem Antrag zur Konzessionierung des Wasserrades, sollte das Rad eine Höhe von 3,76 Meter und eine Breite von 1,28 Meter haben und nach der Art Poncelet ausgebildet werden. Es war ein unterschlächtiges Wasserrad. Die Konzessionserteilung für das Wasserrad ließ lange auf sich warten, da die Betreiber der Spinnerei im gegenüberliegenden Schmitzenbau eine zu starke Entnahme von Rurwasser befürchteten. Nach langjährigen Auseinandersetzungen wurde die Konzession zur Nutzung des Wasserrades erst 1837 erteilt und zwar nur unter der Auflage, daß der in der Rur liegende Streichbalken aufgehöht wurde. Bei niedrigem Wasserstand kam also das Rurwasser nur der gegenüberliegenden Fabrik zugute und das Wasserrad im Roten Haus war damit nur zweitweise nutzbar. Offenbar war diese Auflage derart gravierend, daß das Wasserrad im Roten Haus kaum genutzt wurde.

Der Keller des Roten Hauses wurde also nur zur Wollvorbereitung genutzt, zum Waschen und zum Färben der Wolle. Zum Waschen wurde - wie wir wissen - nicht nur Wasser verwendet. Vielmehr wurde die Wolle zuerst in Kesseln mit heißem Wasser unter Zusatz von faulendem menschlichen Urin bzw. einer Holzaschenlauge gebrüht. Sowohl zum Wollwaschen, wie auch zum Färben muß es im Keller Kessel mit Feuerungseinrichtungen gegeben haben. Da es im Vorkeller keine Kamine gab, müssen diese Feuerungseinrichtungen an den Kamin im "Haus zum Pelikan" angeschlossen gewesen sein. Der Vorkeller dürfte daher zum Trocknen der gewaschenen Wolle auf entsprechenden Holzgestellen gedient haben oder bestenfalls zur Blaufärberei.

Die Wollspülen I und II dienten dazu, die mit Urin oder Holzaschenlauge gebrühte Wolle im Wasser der Rur und des Laufenbachs zu spülen. Dazu benutzte man Weidenkörbe, in die die Wolle eingelagert wurde. Die Weidenkörbe wurden in die Kanäle eingehängt, wobei es in beiden Wollspülen beckenartige Aufweitungen gegeben haben muß.

Nach der Wollvorbereitung wurde die Wolle außerhalb des Roten Hauses gesponnen, gewebt, gewalkt und veredelt durch rauhen, scheren und pressen.

Treppe im Obergeschoß. Foto 2008
Nachdem Friedrich Jacob Scheibler schon 1836 gestorben war, diente das Rote Haus spätestens seit 1839 nur noch zu Wohnzwecken. Beide Hausteile gehörten zweitweise anderen Eigentümern und erst 1908 wurde das Haus von der Familie Scheibler zurückerworben, mit dem Bestreben, das Haus so herzurichten und auszustatten, das es zugleich Wohnlichkeit und museale Präsentation erlaubt. Von der ursprünglichen Einrichtung sind nur noch wenige Stücke erhalten. 1908 versuchte Kaiser Wilhelm II. die Treppe zur Ausstattung des Cecilienhofes in Potsdam zu erwerben.

Nach dem verlorenen Ersten Weltkrieg wurde das Rote Haus durch Besatzungstruppen genutzt. 1942 kaufte die Stadt Monschau das Haus zum Pelikan und richtete dort ein Heimatmuseum ein. 1944 ging durch Granatbeschuß und Brand der obere Teil des Daches über dem Haus zum Pelikan verloren und wurde zunächst durch ein Notdach ersetzt. Bis 1953 wurde der gesamte obere Dachbereich über beiden Häusern in alter Form erneuert. 1957 wurde das Haus in eine Stiftung eingebracht, die durch den Landschaftsverband Rheinland und die Familie Scheibler gebildet wurde. 1968 waren die notwendigen konservatorischen Arbeiten abgeschlossen und das Rote Haus wurde als Museum genutzt. 1973 bis 1980 gab es umfangreiche Sanierungs- und Erneuerungsmaßnahmen.

In naher Zukunft ist geplant, den Keller in die museale Präsentation einzubeziehen mit der Möglichkeit, dem Publikum auch die produktive Funktion dieses unvergleichlichen Denkmals der rheinischen Textilindustrie aufzuzeigen.